

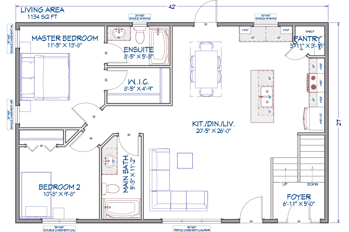
This custom farm home was built with a finished basement, angled attached garage and modern farmhouse finishes.
We loved that the SK2 team were excited about our ideas for our new home and took our ideas to heart. The carpenter we worked with, and office staff, are top notch!
When we started the process of finding a company to build our home we knew we wanted a company that would take our ideas to heart. We found SK2 very interested and excited about our ideas for our new home, and were open and honest with their opinions and providing information to help guide our decisions. They are a hands on company stopping in to see how the work was coming along and not afraid to pick up a shovel or help out where needed. The carpenter we worked with and the office staff are top notch!
We get it, you are full of questions and feel like you don’t know where to start. That is about to change. Sign up for our newsletter and we will share insights about every step of the build and inspire you with the amazing homes our friends have built.







