

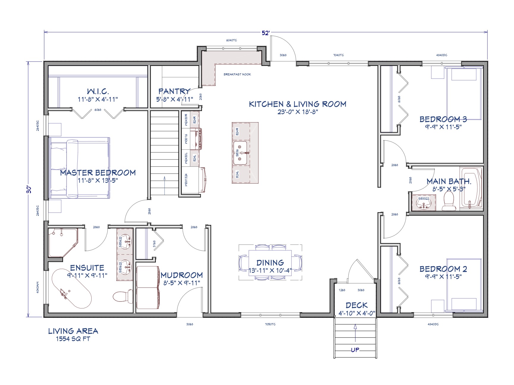
The Michaelson’s were looking for a stress-free way to build a new home, when family friends suggested they reach out to us! They were in search of an open concept floor plan that they could customize to suit their very different work schedules. Luckily for us, custom work is what we do best!
We worked with the Michaelson’s to create a floor plan that was conducive to their unique work schedules. With one family member working nights, having a master bedroom and ensuite that was tucked away from the rest of the household was very important. The layout we designed together allowed for the rest of the household to function, while not disturbing any sleep schedules!
When we started the process of finding a company to build our home we knew we wanted a company that would take our ideas to heart. We found SK2 very interested and excited about our ideas for our new home, and were open and honest with their opinions and providing information to help guide our decisions. They are a hands on company stopping in to see how the work was coming along and not afraid to pick up a shovel or help out where needed. The carpenter we worked with and the office staff are top notch!
We get it, you are full of questions and feel like you don’t know where to start. That is about to change. Sign up for our newsletter and we will share insights about every step of the build and inspire you with the amazing homes our friends have built.




